🏡 Dom s atmosférou domova | Spišské Tomášovce – brána do Slovenského raja

Exkuzívne v realitnej kancelárii Realta ponúkame na predaj rodinný domček.

Sú miesta, kde sa ráno zobudíte do ticha, otvoríte okno a viete, že ste správne.
Tento rodinný dom v Spišských Tomášovciach nie je novostavba bez duše. Je to dom, kde sa žilo, smialo, varilo, stretávala rodina.

Len približne 100 metrov od domu sa napája cyklistický chodník vedúci do Slovenského raja. Miesto, kde si môžete po práci sadnúť na bicykel alebo vyraziť na prechádzku do prírody.

Pozemok o výmere 1 070 m² ponúka dostatok priestoru na záhradu, oddych, detské hry aj pokojné posedenia.


🛠 Rekonštrukcia v roku 2020

Dom prešiel dôležitou obnovou:
✔ plastové okná
✔ nová elektroinštalácia
✔ nová strešná krytina
✔ zateplenie (10 cm izolácia)
✔ ústredné kúrenie

Technicky je vo veľmi dobrom stave a pripravený na bývanie bez nutnosti veľkých investícií.


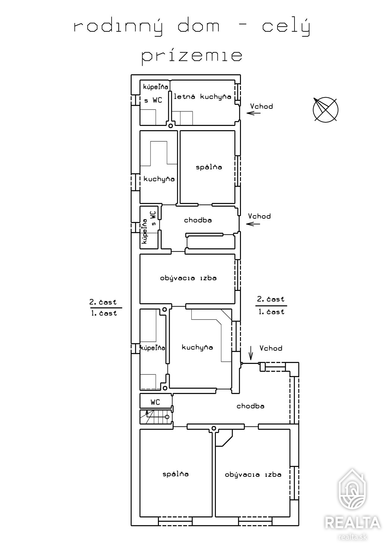
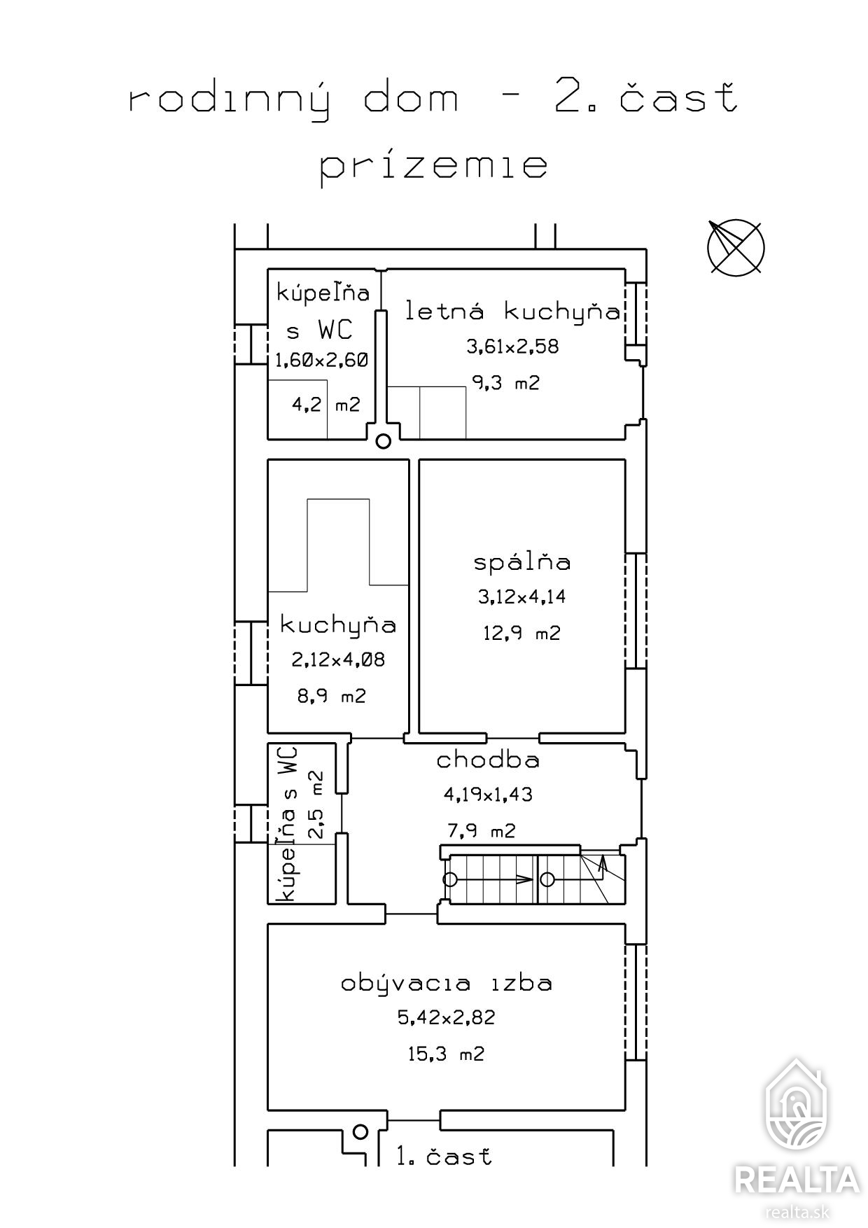
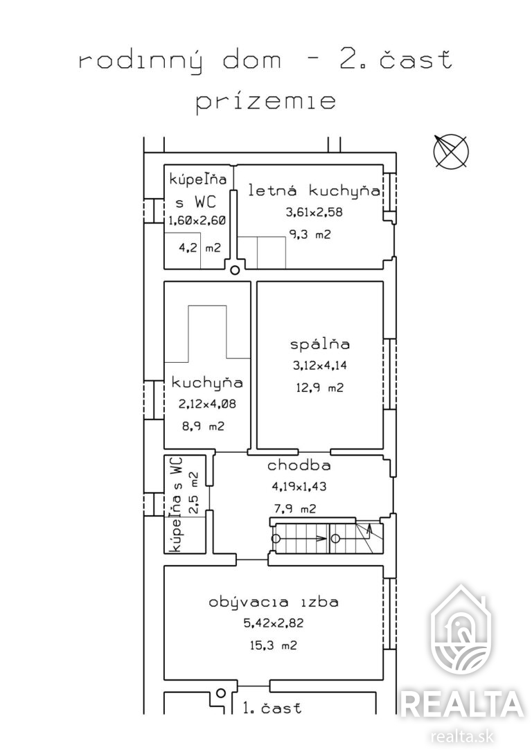
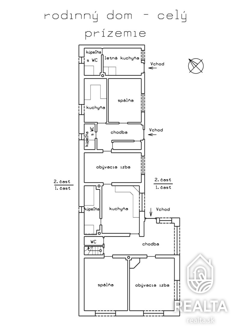
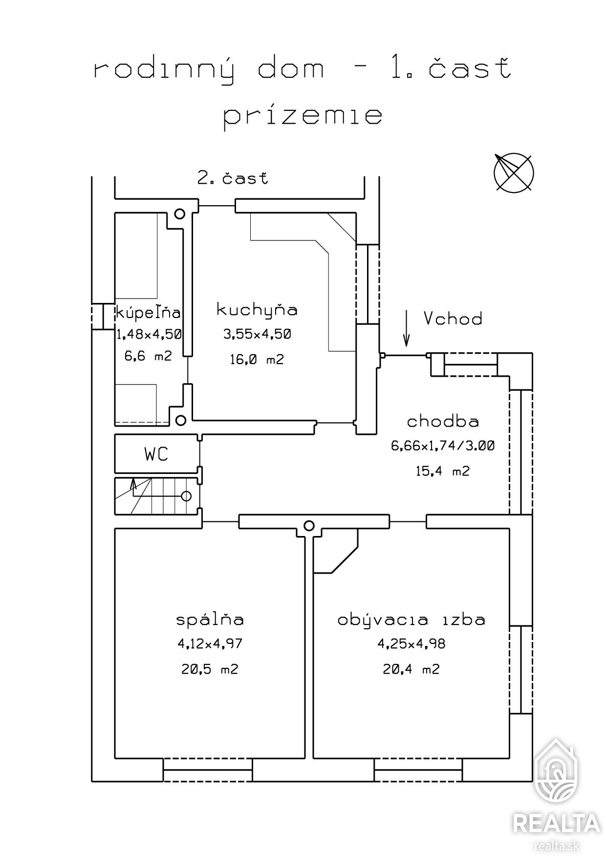
🏠 Dispozícia, ktorá dáva možnosti

✔ 6 izieb
✔ 2 kuchyne
✔ 2 kúpeľne s WC, samostatné WC, kúpeľňa
✔ 2 samostatné vstupy
✔ letná kuchyňa

Dom môže slúžiť ako:
– dvojgeneračné bývanie
– veľkorysý rodinný dom
– kombinácia bývania a práce z domu
– chalupa blízko Slovenského raja

Súčasťou je garáž, hospodárska budova, pivnica a altánok.


📍 Spišská Nová Ves cca 6 km
📍 Poprad cca 25 km

Pokoj dediny, ale mesto na dosah.

📑 Znalecký posudok bude k dispozícii.
💰 Cena: 218 000,-€
Pri rýchlom a serióznom jednaní možnosť dohody.

📩 Kontakt

Janka Maťašovská
📞 +421 905 330 127
✉️ realta@realta.sk


🏠 REALTA – kompletný servis pre bezproblémovú kúpu

✔️ právne a hypotekárne poradenstvo
✔️ spolupráca s advokátmi a súdnymi znalcami
✔️ kompletný servis od obhliadky až po odovzdanie nehnuteľnosti


Text a fotografie sú duševným vlastníctvom realitnej kancelárie REALTA.
Akékoľvek kopírovanie, šírenie alebo zneužitie bez písomného súhlasu je zakázané.

🏡 Dom s atmosférou domova | Spišské Tomášovce – brána do Slovenského raja

Typ:Predaj
Kategória:Domy
Adresa:Hrabušická 56/18, Spišské Tomášovce
ID:20262001
Charakteristiky:
Tiché pekné prostredie dom s potenciálom
218 000,-€
Viac informácií

Podrobnosti

Janka Maťašovská
Majiteľka realitnej kancelárie
realta@realta.sk +421 905 330 127
" Najlepšiu reklamu robia spokojní klienti ... "