🏡 Útulný rodinný dom v Ľubici – priestor pre rodinu aj víkendový oddych

Exkluzívne v realitnej kancelárii REALTA ponúkame na predaj rodinný dom v obci Ľubica, ktorá patrí medzi obľúbené podtatranské lokality. Len pár minút autom sa nachádza historické mesto Kežmarok a na dosah máte aj krásnu prírodu Vysoké Tatry.

Dom bol postavený približne v roku 1963 a počas rokov prešiel úpravami. Je zateplený, čo prispieva k príjemnej klíme v interiéri aj k úspornej prevádzke. Mesačné náklady na bývanie sú približne 150 €.

Nachádza sa na pozemku o výmere 361 m², pričom zastavaná plocha domu je 95 m² a úžitková plocha domu je 125 m².

Dom ponúka príjemné rodinné bývanie alebo môže slúžiť aj ako rekreačný dom v blízkosti hôr.


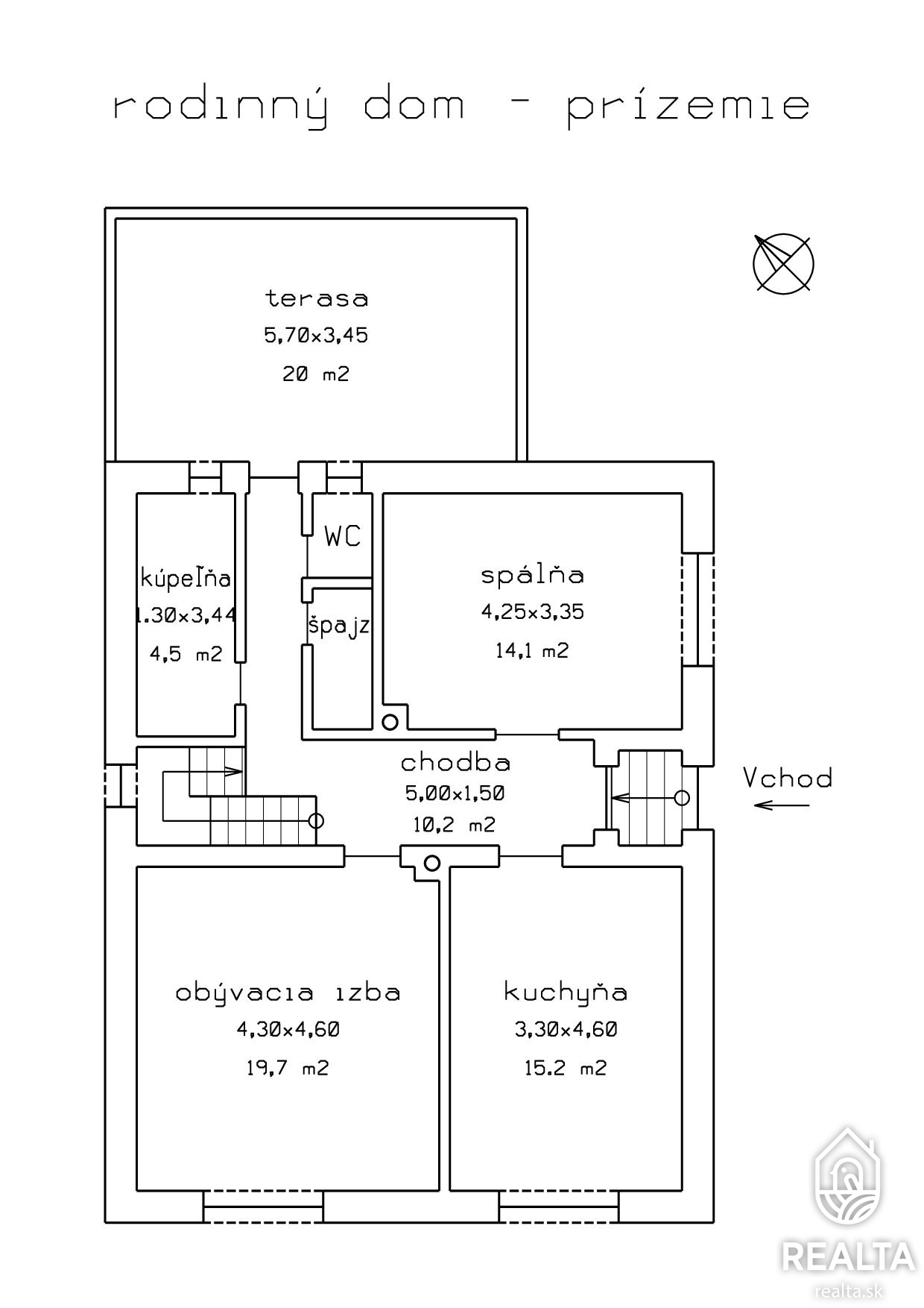
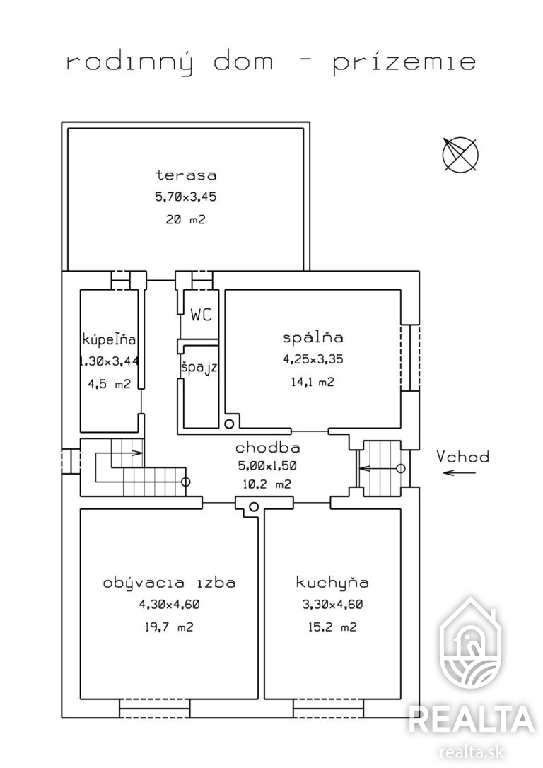
🏠 Dispozícia domu

Dom je dvojpodlažný a čiastočne podpivničený, čo poskytuje dostatok priestoru pre rodinu.

Prvé podlažie

  • kuchyňa
  • obývacia izba
  • spálňa
  • kúpeľňa
  • samostatné WC
  • špajza
  • vstup na priestrannú terasu

Druhé podlažie

  • tri izby v podkroví
  • WC

Suterén

  • letná kuchyňa
  • sprchový kút
  • WC
  • vstup zo záhrady

Medziposchodie ponúka praktický úložný priestor.


🌿 Pozemok

Pozemok ponúka priestor pre záhradu, oddychovú zónu alebo detské hry.
K domu patrí garáž a parkovanie priamo na pozemku.


📍 Lokalita

Obec Ľubica ponúka pokojné bývanie s výbornou dostupnosťou:

• Kežmarok – 3 min
• Thermal Park Vrbov – 10 min
• Poprad – 15 min
• Tatranská Lomnica – 20 min

Okolie ponúka množstvo možností na turistiku, cykloturistiku, lyžovanie aj relax.


📩 Kontakt

Janka Maťašovská
📞 +421 905 330 127
✉️ realta@realta.sk


🏠 REALTA – kompletný servis pre bezproblémovú kúpu

✔️ právne a hypotekárne poradenstvo
✔️ spolupráca s advokátmi a súdnymi znalcami
✔️ kompletný servis od obhliadky až po odovzdanie nehnuteľnosti


Text a fotografie sú duševným vlastníctvom realitnej kancelárie REALTA. Akékoľvek kopírovanie, šírenie alebo zneužitie bez písomného súhlasu je zakázané a môže byť postihované podľa Autorského zákona a príslušných právnych predpisov.

🏡 Útulný rodinný dom v Ľubici – priestor pre rodinu aj víkendový oddych

Typ:Predaj
Kategória:Domy
Adresa:Budovateľská 777/36, Ľubica
Status:Voľné
ID:20262002
Charakteristiky:
dobrá lokalita čiastočná rekonštrukcia
257 500,-€
Viac informácií

Podrobnosti

Janka Maťašovská
Majiteľka realitnej kancelárie
realta@realta.sk +421 905 330 127
" Najlepšiu reklamu robia spokojní klienti ... "